|
Buenos Aires / Argentina |
| especiales > Box House, São Paulo, Brasil / Yuri Vital - Arquiteto [01/09/09] |
|
|
| |
|
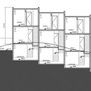
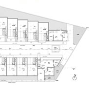
With the main duty to tell the world how architecture can contribute to good housing solutions for those who has a less-favored income, this project begins with the ideal that social housings can unite both aesthetic and functional qualities, with no need of high costs. A project of a residential complex was needed, and it should combine low cost and a new architecture, to enforce the ideal of quality in a new developer enterprise. Thus, using a cleaning and formal rationality, it was possible to develop a set of 17 low-cost units. The structural solution, achieved through innovative ideal, show a mixed structure of masonry and conventional structure in which the slab with a large windward sheet is mounted in a beam (flat, so as not to be noticed in the rear below), which in turn connects to the main structure of the house. In a high place and with an expressive slope, the project has an inside street which connects units, providing an axis of great visibility of the surroundings. Each residence has a one car garage above. To don't exceed the legal high limit of 6 meters tall established by the city, it was designed a mid-low level to accommodate the garage, deposit and a working area, on the next floor (mid-high level), there is the living room, toilet, kitchen and the service area. The second floor accommodates two bedrooms and a bathroom. The water tower stands as a structural, plastic and low cost solution to the project, because it is located on the front facade of each unity, giving a individual touch, while concentrating all wet area in only one point. The details of the project are all largely concerned, mostly to provide economy. It has been described all the way l from the edge of drippers in all slabs, to the interior of the water tank. The total area is 1011 m², and the area of each unit is 46 m².
Imágenes gentileza > Yuri Vital - Arquiteto hacer click en las imágenes para ampliarlas |
![]() |
![]() |
![]() |
![]() |
![]() |
![]() |
![]() |
![]() |
|
Links > Otras obras > Teatro Municipal de Itapeva, Brasil |
|||
|
|
|
diseño y selección de contenidos >> Arq. A.
Arcuri
|
|
|
|
|
|