Buenos Aires / Argentina

inicio especiales sugerir noticia links newsletter  

especiales > Biblioteca Pública Luis Martín-Santos, Vallecas, Madrid - España / Ibán Carpintero López, Mario Sanjuán Calle, Ángel Sevillano Martín arquitectos [09/09/10]

Biblioteca Luis Martín-Santos. Vallecas (Madrid)

Conjeturas

La biblioteca se plantea como metáfora literal de los libros. Unas portadas que te atraen sin dejar vislumbrar más que retazos de la historia que encierran. Historias todas ellas nacidas desde la imaginación.

Así se intenta construir la biblioteca, como una portada enigmática, con una volumetría contundente que haga de lo construido un objeto, pocos grandes elementos. Una portada atrayente, enigmática, que tras ser traspasada nos descubre una historia llena de matices, con caminos no escritos por descubrir.

Insercion Urbana

El proyecto parte de la necesidad de adecuarse a una parcela en la que se encontraba una edificación previa degradada por el abandono. La manzana acogerá, manteniendo los límites de lo existente, un centro Cultural en su lado Norte y la Biblioteca en su lado sur.

La biblioteca se abre a un bulevar peatonal, insertándose en el límite de una zona de construcciones de bloque abierto de 7 u 8 alturas. La pieza busca su identidad en la materialización constructiva, renunciando a criterios de composición.

Por otro lado, en el acercamiento al edificio, éste se despoja de la rotundidad aparente para abrirse a las circulaciones posibles. De este modo, atendiendo a los desniveles de los viales posibilita tres entradas, una más privada, para grupos, en la planta inferior con acceso directo a la Biblioteca infantil, y dos en las restantes fachadas que comunican con la planta de acceso. La primera de éstas, abierta al bulevar, se significa como una grieta en la edificación desde la que se percibe el funcionamiento de la biblioteca. En esta fachada el volumen hermético superior avanza y genera un ámbito a cubierto que junto con la escalinata de acceso se configuran como un espacio de dialogo interior-exterior. La segunda, más oculta, facilita el acceso a personas con minusvalía así como se relaciona con el acceso al centro cultural contiguo.

Desarrollo Del Programa

El edificio se concibe como un sólido denso, compacto y hermético, horadado por 6 patios circulares que atrapan la luz y generan zonas de lectura abiertas al cielo.

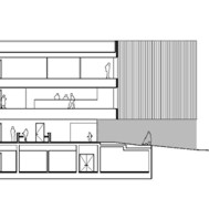
El programa dentro de este sólido se desarrolla en cuatro niveles con usos claramente diferenciados en las distintas plantas, produciéndose no obstante una intensa relación visual entre ellas a través de las secciones.

Los usos definidos en programa son claros: el vestíbulo / sala de exposiciones, y las salas (infantil – juvenil, publicaciones periódicas, sala general y zonas de reunión) Mientras que el vestíbulo se configura como espacio público y abierto, las salas se vuelven introvertidas buscando la luz controlada para su correcto funcionamiento, pero eludiendo las vistas del exterior.

El vestíbulo, concebido como ámbito de relación y control del edificio, se ubica en el vértice de los dos caminos que conducen a las entradas principales. Vinculado espacialmente con la sala infantil y comunicado directamente con la sala de publicaciones periódicas, el vestíbulo se entiende como un espacio disperso, colgado de la doble altura de la sala infantil y abierto al exterior, en el que se entiende de forma clara el funcionamiento del edificio.

La sala de publicaciones periódicas se ubica en la planta de acceso, comunicada directamente con el vestíbulo y abierta a la calle mediante un ventanal rasgado, se define en torno al único patio accesible en esta planta, patio de lectura y espacio de relación visual con la sala general.

La sala para la Biblioteca Infantil / Juvenil se encuentra en la planta inferior, ocupando la zona no enterrada de la edificación, quedando la parte sin luz para ubicar archivos e instalaciones. La sala es un espacio abierto, en doble altura, cerrada en la parte baja donde se desarrolla la biblioteca, y abierta al exterior en la parte alta para la correcta iluminación. En esta sala los patios del mostrador y el Cuentacuentos generan un deambular libre y divertido por la sala, bañados por la grieta de iluminación superior.

Desde el vestíbulo de planta de acceso el tránsito por la escalera, claramente visible, nos lleva a la sala general, parte principal del programa de la biblioteca y donde se acumula el grueso de los fondos de la misma. De nuevo, igual que la sala infantil, se configura como un espacio introvertido, cerrado en si mismo. Sorprendentemente, frente a la imagen hermética exterior, la sala es un espacio luminoso, bañado por una suave luz tamizada, que penetra a través de los patios. Los patios son elementos transparentes y reflectantes a la vez, que generan un recorrido aleatorio, un deambular por la sala sin direccionalidad clara, cautivado por la tranquilidad existente.

Por último las zonas de reuniones se cuelgan sobre la sala general, permitiendo divisar desde otra perspectiva el deambular de la gente, percibiendo desde esa posición dominante el uso real de la sala general.

Construcción

Construcción en este caso no es solo una elección de unos pocos materiales, sino la definición de la colocación y remates de los mismos de cara a la transmisión de una idea apoyándose en la materialidad de los mismos.

De este modo la estructura, metálica, se convierte en un entramado no sólo portante sino definitorio y cualificador de los espacios. Sobre un zócalo de hormigón que preserve de la humedad los fondos se apoya una estructura ligera que se manifiesta en todos los espacios. En planta baja los pilares y la cercha sobre la sala infantil se inclinan reafirmando el carácter dinámico de la planta y su función de cosido entre las salas ocultas arriba y abajo, permitiendo la iluminación y la visión a su través.

En planta alta la estructura se centra en un perímetro opaco y en los propios patios, pasando a ser nuevamente un elemento configurador del espacio. Los patios se convierten en un entrelazado estructural forrado de vidrio que ilumina y desahoga visualmente la sala.

El resto de la solución constructiva se realiza con sistemas sencillos, o mejor dicho simplificados. La fachada ventilada se resuelve con una chapa de gran onda continua, sin apenas interrupciones, y sin remates que enfaticen la presencia del objeto con su sistema de ejecución. Los vidrios serán siempre vidrios sin carpinterías, de suelo a techo o bien adheridos con silicona estructural, intentando que los juegos de reflejos no se interrumpan nada más que por la ineludible necesidad de partir para colocar. Los suelos serán igualmente continuos, de distintos colores que diferencien las salas y adquieran tonos variados por el reflejo de la luz sobre ellos. El resto blanco, neutro, dejando a los demás que hablen.


Proyecto: Biblioteca Pública Luis Martín-Santos

Situación: Enrique García Álvarez S/N Villa De Vallecas 28031 Madrid

Fecha Terminación: Junio 2008

Arquitectos: Ibán Carpintero López / Mario Sanjuán Calle / Ángel Sevillano Martín

Colaboradores: Jg Ingenieros (Instalaciones), Nb 35 (Estructuras) - José María Tabuyo, Rubén Armas Mariscal

Aparejadores: Alberto Palencia, Jose Antonio Alonso

Promotor: Consejería De Cultura Y Deporte - Comunidad De Madrid

Empresa Constructora: Pecsa Sa

Superficie Construida:  3691.42 M2

 


Imágenes gentileza > Ibán Carpintero López

hacer click en las imágenes para ampliarlas

 

 

diseño y selección de contenidos >> Arq. A. Arcuri