Buenos Aires / Argentina

inicio especiales sugerir noticia links newsletter  

especiales > Bar House, Castle Creek, Colorado - Estados Unidos / Peter Gluck and Partners [28/09/09]

Bar House, Castle Creek, Colorado - Peter Gluck and Partners

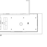
The simple and strong geometric shape of this house – which is a bar set boldly across, rather than nestling along, the valley floor – stands up to the rugged and majestic mountains that surround it. Despite its strength, the house is partly submerged in the ground, as if to lock it into the landscape. The views up and down the valley dominate the interior spaces, but they are tempered in different ways by the varied size and placement of the windows and the shape of the rooms.

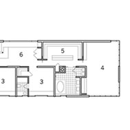
The winter weather is severe, and the sun reaches the bottom of the narrow valley only from the south. The bedrooms and the family room are located in a single-loaded corridor on the south side of the second floor. The linear program gives each room southern exposure and provides spectacular views of the valley. An exterior stair is elongated on the northern side, leading to an open-air roof deck, allowing light into the second floor and providing the bedrooms with cross-ventilation. The living room on the ground floor has scenic views on three sides. A garage and guest apartment are located on the other side of the driveway, and an overhang of the house provides protection in inclement weather.


Imágenes gentileza > Peter Gluck and Partners / Fotos > © Paul Warchol Photography

hacer click en las imágenes para ampliarlas

Links >

Peter Gluck and Partners

 

diseño y selección de contenidos >> Arq. A. Arcuri