Buenos Aires / Argentina

inicio especiales sugerir noticia links newsletter  

 especiales > Edificio Altamira, ciudad de Rosario (Argentina) / Arq. Rafael Iglesia  [25/01/06]

“En un objeto lógico cada parte depende de la precedente.
Se establece una cierta secuencia en cuanto parte de la lógica.
Sin embargo, un objeto racional es algo donde en cada momento hay que tomar una decisión lógica...
es algo acerca de lo que reflexionar.
En una secuencia lógica no existe reflexión.
Es un modo de no pensar. Es irracional”.
Sol Lewitt  

"En este proyecto, me interesa destacar dos aspectos por sobre otros. En primer lugar, el intento de cuestionar lo que es un apartamento para vivienda y su funcionamiento, es decir, el programa. En segundo lugar, su resolución estructural, que hace que la forma de sostén –es decir, la manera en que las cargas llegan al suelo- sea por sí misma el lenguaje del edificio."

 

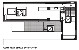
El programa

El movimiento moderno no sólo nos dio una estética sino una ética: es decir, en una casa-habitación la especificidad de las funciones nos indica que hay un dormitorio para los padres (para la procreación), otro para los hijos –dos, si fueran de distinto sexo-, un ámbito común, etc. En el edificio lo que intento poner en cuestión es esta especificidad de funciones, porque el núcleo familiar ya no es lo que era, lo cual, sin duda, impone otra ética.

Pretendimos que la planta fuera lo más flexible posible, por eso, en este proyecto la indiferencia por la estandarización de las funciones llega hasta la mesada. Según el texto de Neufert, las distintas actividades que se desarrollan sobre la mesada de una cocina se organizan a una altura entre 75 y 90 cm. En nuestro caso, por una lado superponemos las funciones de comer y cocinar en un mismo artefacto (que usualmente se separan utilizando muebles distintos); por el otro, le damos a cada función la altura que necesita. Para lavar, la mesada presenta 90 cm de altura; para cocinar, comer, planchar, etc., tiene 78 cm. Si bien el mueble es aquello que separa al hombre del piso, se trata de mantener aquel espíritu primitivo de la cercanía del hombre alrededor del fuego. La cocina se transforma en un lugar primitivo, un fogón.

 

Estructura

El proyecto comienza con el diseño de la estructura como un objeto formado por el estibado de las vigas, a la manera en que se acopia la madera. Pero al desarrollarlo, nos dimos cuenta que de utilizar esta estrategia hasta el final, el edificio hubiera quedado encerrado en esta trama. Asimismo, me había propuesto sacar a la vista la circulación vertical. De esta forma, el ingreso a la vivienda sale del interior de la planta para transformarse en un espectáculo, tal como sucede en una vivienda de planta baja. Para todo esto fue necesario desfasar esta viga, de manera tal que pudiera obtener la altura necesaria para permitir el ingreso al interior. Esta operación produce un acomodamiento de la estructura y ya no es claro desde el interior cómo funciona el sistema de sostén.
Otro aspecto del edificio es que no posee ventanas en el sentido tradicional del término. Y esto es resultado de circunscribir el lenguaje del mismo sólo a su estructura, es decir, a la disposición de las vigas. Una ventana deja de ser un sustantivo para transformarse en una entrada de luz. Al mismo tiempo, aquí el vacío asume la forma de un pórtico, el vacío se muestra como si fuese la estructura de sostén.

Me serviré de la descripción que Gilles Deleuze hace del Ajedrez y el Go para ilustrar dos maneras de hacer arquitectura. En una arquitectura codificada todos sus elementos funcionan como las piezas de ajedrez: tienen una naturaleza interna o propiedades intrínsecas que les hacen ser tales. Es decir, una ventana es siempre una ventana, una puerta es una puerta, una viga es una viga, y esto se cumple para todos los componentes. Tienen roles y movimientos definidos. Cada uno de ellos es un sujeto de enunciado dotado de un significado relativo; los significados relativos se combinan en un sujeto de enunciación.
En mi edificio busco que suceda lo contrario. Lo que intento poner en juego son sólo las vigas tratadas como simples unidades cuya función es anónima, colectiva y de tercera persona –como las piezas del Go. Las vigas aquí son elementos no subjetivados que no tienen propiedades intrínsecas sino de situación: pueden ser muro, ventana, puerta. Eventualmente, “actuarán” trabajando como sostén y sus roles dependerán del lugar que ocupen en el espacio. La insistente viga se desplaza construyendo, destruyendo, bordeando, subiendo, bajando, soportando, deteniéndose, ausentándose y desapareciendo cuando menos se lo espera, sin alterar la unidad. En “la obra” la viga puede ser el héroe o el mayordomo, apareciendo y desapareciendo sólo cuando ello es necesario para que se cumpla el destino.

Rafael Iglesia

 

Imágenes gentileza > Arq. Rafael Iglesia

hacer click en las imágenes para ampliarlas

ampliar imagen

ampliar imagen

ampliar imagen

ampliar imagen

ampliar imagen

Links >

Arq. Rafael Iglesia

Otras obras: Pabellones Parque Independencia

I inicio I sugerir noticia I especiales I newsletter I links I agregar a favoritos

 

diseño y selección de contenidos >> Arq. A. Arcuri