Buenos Aires / Argentina

inicio especiales sugerir noticia links newsletter  

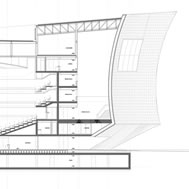
especiales > Auditorio y Centro de Congresos, Aguilas Murcia - España / EBV Arquitectos [09/03/07]

Auditorio y Centro de Congresos, Aguilas Murcia - España / EBV Arquitectos -Fabrizio Barozzi + Alberto Veiga

Concurso Internacional
Primer Premio/ Proyecto en ejecución
Presupuesto 26.413.657 Euros
Superficie 10.216 m²
2004...

El proyecto surge como respuesta a las características que la particular localización del lugar de proyecto proporciona..Por un lado la necesidad de relación con el tejido urbano que crece hacia el interior y por otro, conservar la tonalidad expresiva del paisaje natural en el que se encuentra.

En esta contraposición el proyecto ha definido las tensiones que lo articulan y que le permiten organizarse como una respuesta coherente a los condicionantes que residen en el lugar. Asimilar esta contraposición, ha llevado el proyecto a encontrar su definición específica como una reflexión dialéctica, sobria y potente a la vez, entre el artificio de lo urbano y la naturalidad de lo orgánico. El proyecto entonces aparece como una masa modelada en función de las tensiones de los distintos espacios que la rodean ,hacia la ciudad, ofrece su lado urbano; alzado limpios, ordenados y pausados que construyen la manzana hacia las calles internas. Hacia el mar, encuentra su condición especifica en una búsqueda espacial que intenta interpretar los espacios y las configuraciones que el paisaje y la geografía proporcionan. De ahí, el proyecto trae, la posibilidad de modelarse hacia la bahía con amplias superficies cóncavas que tejen relaciones poderosas con el paisaje natural circundante. Se asienta como una vela frente al mar, se moldea sobre el perfil retranqueante de la costa a la que mira, e intenta abrirse hacia el horizonte.

 

Imágenes gentileza > EBV Arquitectos

hacer click en las imágenes para ampliarlas

ampliar imagen

ampliar imagen

ampliar imagen

ampliar imagen

ampliar imagen ampliar imagen ampliar imagen ampliar imagen

Links >

EBV Arquitectos

I inicio I sugerir noticia I especiales I newsletter I links I agregar a favoritos

 

diseño y selección de contenidos >> Arq. A. Arcuri